Продам 2-х комнатную квартиру в Черноморском у моря
-
Светлана77
- Сообщения: 1
- Зарегистрирован: 12 апр 2011, 21:28 [phpBB Debug] PHP Warning: in file [ROOT]/vendor/twig/twig/lib/Twig/Extension/Core.php on line 1266: count(): Parameter must be an array or an object that implements Countable
Продам 2-х комнатную квартиру в Черноморском у моря
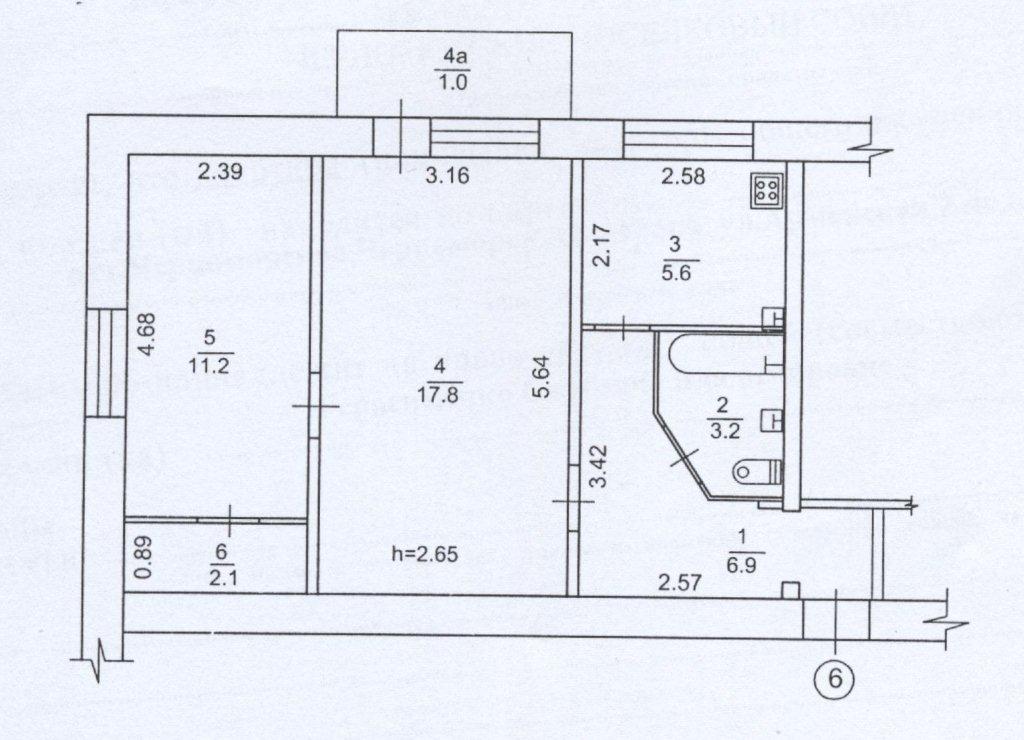
Продается двухкомнатная квартира с видом на море: пгт. Черноморскре, ул. Армейская, дом 2 - 2эт/2эт дома, общая пл. 47,8/ жилая 29/ кухня 5,6 , с газом, с/у совмещен, состояние обычное. Крупноблочный известняк, новая крыша, хорошие соседи, есть возможность пристройки. К морю 10 минут ходьбы. 33 000 у.е. Возможен торг. Светлана (067) 216-16-41.
- Вложения
-
- План квартиры
- План квартиры.jpg (92.42 КБ) 3793 просмотра
Кто сейчас на конференции
Сейчас этот форум просматривают: нет зарегистрированных пользователей и 6 гостей
