Откликнитесь кто служил п.Черноморское в.ч. 65318
-
Андрей87
- Сообщения: 13
- Зарегистрирован: 30 авг 2010, 20:31 [phpBB Debug] PHP Warning: in file [ROOT]/vendor/twig/twig/lib/Twig/Extension/Core.php on line 1266: count(): Parameter must be an array or an object that implements Countable
Re: Откликнитесь кто служил п.Черноморское в.ч. 65318 зрк с-
План помещение. Корректируйте если что не так.
- Вложения
-
- План.jpg (55.83 КБ) 9418 просмотров
-
alexsej.m.
- Сообщения: 8
- Зарегистрирован: 13 фев 2010, 12:00 [phpBB Debug] PHP Warning: in file [ROOT]/vendor/twig/twig/lib/Twig/Extension/Core.php on line 1266: count(): Parameter must be an array or an object that implements Countable
Re: Откликнитесь кто служил п.Черноморское в.ч. 65318 зрк с-
НА ВТОРОМ ЭТАЖЭ К9,НАХОДИЛИСЬ:КОМНАТА ПСИХРАЗГРУЗКИ(с дырой в палубе),ВЕНТИЛЯЦИОННАЯ,БЫТОВКА,ДВА КУБРИКА,КАПТЕРКА,СТОЛОВАЯ С КАМБУЗОМ.КСТАТИ,В ПСИХУШКЕ,БЫЛА ЗАМУРОВАННАЯ КОМНАТА,МЫ ТУДА СВАЛИЛИ СТАРОЕ ОБМУНДИРОВАНИЕ,В 88-ом,И ЗАШИЛИ ВХОД.
-
Андрей87
- Сообщения: 13
- Зарегистрирован: 30 авг 2010, 20:31 [phpBB Debug] PHP Warning: in file [ROOT]/vendor/twig/twig/lib/Twig/Extension/Core.php on line 1266: count(): Parameter must be an array or an object that implements Countable
Re: Откликнитесь кто служил п.Черноморское в.ч. 65318 зрк с-
Что еще там было???
- Вложения
-
- Кабина К-9 – командный пункт группы зенитных ракетных дивизионов С-200 (или полка С-200). Основные функционеры боевого расчета: за ВИКО находится командир группы зрдн, за ним – оператор целераспределения, далее – оператор целераспределения в луче радиолокатора подсвета цели.
- 69_02.jpg (110.96 КБ) 9388 просмотров
-
- абина К-9 – командный пункт группы зенитных ракетных дивизионов С-200 (или полка С-200). Основные функционеры боевого расчета: за ВИКО находится командир группы зрдн, за ним – оператор целераспределения, далее – оператор целераспределения в луче радиолокатора подсвета цели
- 70_02.jpg (63.36 КБ) 9388 просмотров
-
Serg_p
- Пансионат Динамикс
- Сообщения: 515
- Зарегистрирован: 19 май 2007, 09:09
- Откуда: Kiev-Chernomorskoe [phpBB Debug] PHP Warning: in file [ROOT]/vendor/twig/twig/lib/Twig/Extension/Core.php on line 1266: count(): Parameter must be an array or an object that implements Countable
Re: Откликнитесь кто служил п.Черноморское в.ч. 65318 зрк с-
Блин все секретные сведения выложили:-)
Кстати возле Голованивска по трассе Николаев-Умань есть музей ракетных войск. Очень интересный куча разных ракет, подземная шахта с командным пунктом.
Отдыхал у нас один товарищ из Беларуси знающий это дело, так он прям в восторге и всем рекомендовал посетить.
Кстати возле Голованивска по трассе Николаев-Умань есть музей ракетных войск. Очень интересный куча разных ракет, подземная шахта с командным пунктом.
Отдыхал у нас один товарищ из Беларуси знающий это дело, так он прям в восторге и всем рекомендовал посетить.
-
Андрей87
- Сообщения: 13
- Зарегистрирован: 30 авг 2010, 20:31 [phpBB Debug] PHP Warning: in file [ROOT]/vendor/twig/twig/lib/Twig/Extension/Core.php on line 1266: count(): Parameter must be an array or an object that implements Countable
Re: Откликнитесь кто служил п.Черноморское в.ч. 65318 зрк с-
КП "РАСПАДОК" 2010 г.
- Вложения
-
- x_fdf23356.jpg (117.93 КБ) 9354 просмотра
-
- x_4b6cf306.jpg (76.97 КБ) 9354 просмотра
-
- x_58b637cd.jpg (74.37 КБ) 9354 просмотра
-
- x_c1630a95.jpg (83.55 КБ) 9354 просмотра
-
KAA
[phpBB Debug] PHP Warning: in file [ROOT]/vendor/twig/twig/lib/Twig/Extension/Core.php on line 1266: count(): Parameter must be an array or an object that implements Countable
Re: Откликнитесь кто служил п.Черноморское в.ч. 65318 зрк с-
Таки пытаюсь найти хоть одного, кто в ВЧ 65318Е служил.
Левая сторона бухты Черноморска конечно сама по себе более насыщена былыми служащими. Там мнооооого народа было. Очень много.
200-тый комплекс в своё время был крутой сам по себе. И дальностью и ядрёным боекомплектом и количеством людей.
Но неуж-то никого нет, кто на "Ангаре" прикрывал этот 200-тый?
Странно даже, что никого настольгя не замучила кроме меня.
Левая сторона бухты Черноморска конечно сама по себе более насыщена былыми служащими. Там мнооооого народа было. Очень много.
200-тый комплекс в своё время был крутой сам по себе. И дальностью и ядрёным боекомплектом и количеством людей.
Но неуж-то никого нет, кто на "Ангаре" прикрывал этот 200-тый?
Странно даже, что никого настольгя не замучила кроме меня.
- саша
- Сообщения: 148
- Зарегистрирован: 20 дек 2007, 21:07 [phpBB Debug] PHP Warning: in file [ROOT]/vendor/twig/twig/lib/Twig/Extension/Core.php on line 1266: count(): Parameter must be an array or an object that implements Countable
Re: Откликнитесь кто служил п.Черноморское в.ч. 65318 зрк с-
КАА надо наверно подождать ещё немного! Наверно все в бизнесе и смотрят котировки а не наш сайт!
На Распадке двери тяжёлые были а все таки умыкнули куда-то!
Наверно шварцнегеры культуристы!
На Распадке двери тяжёлые были а все таки умыкнули куда-то!
Наверно шварцнегеры культуристы!
-
Андрей87
- Сообщения: 13
- Зарегистрирован: 30 авг 2010, 20:31 [phpBB Debug] PHP Warning: in file [ROOT]/vendor/twig/twig/lib/Twig/Extension/Core.php on line 1266: count(): Parameter must be an array or an object that implements Countable
Re: Откликнитесь кто служил п.Черноморское в.ч. 65318 зрк с-
Расскажите о подземном КП в «РАСПАДРЕ»
Сколько помещений, глубина, функции и т. д.
Если подземный пунк на "Аванпосту"
Сколько помещений, глубина, функции и т. д.
Если подземный пунк на "Аванпосту"
-
VLA
- Сообщения: 9
- Зарегистрирован: 28 апр 2010, 12:45 [phpBB Debug] PHP Warning: in file [ROOT]/vendor/twig/twig/lib/Twig/Extension/Core.php on line 1266: count(): Parameter must be an array or an object that implements Countable
Re: Откликнитесь кто служил п.Черноморское в.ч. 65318 зрк с-
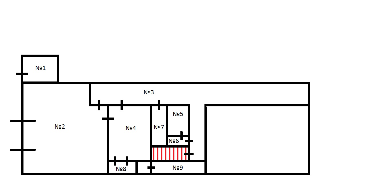
Андрей, доброго здоровья! Под бункером ЗКП подземных сооружений не было. С 79 по 81 года планировка ЗКП была иная. Про размещение кабин я уже писал. Оперзал (№4) был одной большой комнатой ни 7,ни 8, ни 9 комнаты не было. №5 И №6 между собой не соединялись и имели вход со стороны малого коридора. В №6 была фотолаборатория, №5 предназначалась под секретку. У меня такое чувство, что перепланировали не только 1 этаж, но и лестичтный марш ведущий на второй этаж? Помню, что коридор 2-го этажа находился по центру и заканчивался квадратным люком вентиляционой камеры в которой, с право был еще один такой же люк с отверстием в полу. Это отверстие уходило в нижнюю вет. камеру, вход в которую был из коридора №3. Весь бункер был без внутренних работ - голый бетон и ракушечник. Про столовую, а те паче про комнату псих. разгрузки, не мечтали, жили в казарме. Интересно в каком году это все переделали? Мы, летом 80 года, рубили перед воротами бункера водоотводные траншеи (канавы) и "махались" целый месяц из смены в смену. Хотя глубина и ширина была 1,5 - 2 штыка лопаты. С уважением, Владимир.
-
Андрей87
- Сообщения: 13
- Зарегистрирован: 30 авг 2010, 20:31 [phpBB Debug] PHP Warning: in file [ROOT]/vendor/twig/twig/lib/Twig/Extension/Core.php on line 1266: count(): Parameter must be an array or an object that implements Countable
Re: Откликнитесь кто служил п.Черноморское в.ч. 65318 зрк с-
Обновленная версия плана первого этажа
- Вложения
-
- План.jpg (77.46 КБ) 9278 просмотров
-
- Коридор №15 Первая дверь вход в комнату №6 Вторая дверь лестница
- x_559c801c.jpg (52.57 КБ) 9278 просмотров
-
- Комната №6 с права вход в №5
- x_0470d592.jpg (34.5 КБ) 9278 просмотров
Кто сейчас на конференции
Сейчас этот форум просматривают: нет зарегистрированных пользователей и 7 гостей
